In Plankstadt wird eine 2-Feld-Kulturhalle mit Bühnenanlage und Nebenräumen sowie den Ersatzneubau einer 3-Feld-Sporthalle errichtet. Gemeinsam mit der bereits vorhandenen Bundesligakegelhalle samt Restaurant sowie dem im zweiten Bauabschnitt geplanten „Haus der Vereine“ entsteht so das „Kultur- und Sportquartier Plankstadt“.
Wir von JOHNNY architecture arbeiten in diesem Projekt mit den Dietrich | Untertrifaller Architekten zusammen. Gemeinsam haben wir bei dem Ausschreibungsverfahren der Stadt Plankstadt den Zuschlag für die Planung und Umsetzung des Projektes bekommen.
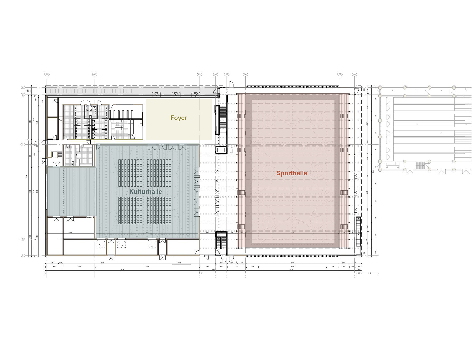
Die Funktionen der Kultur- und Sporthalle sind räumlich von der bestehenden Kegelhalle und dem zukünftigen Haus der Vereine getrennt. Zwischen den Gebäuden entstehen so attraktive öffentliche und halböffentliche Freiräume und ein neuer Festplatz. Der Hauptzugang liegt auf der Westseite. Der Nebenzugang auf zwei Ebenen (Eingangsniveau und Bühnenniveau) entlang der südlichen Fassade ermöglicht die Anlieferungen für die Kultur- und Sporthalle.
Die Anordnung
Die Hallen sind zueinander versetzt positioniert. Im Norden bildet die 3-fach Sporthalle mit ihren großflächigen Verglasungen den Auftakt. Darauf folgt der Eingangsbereich mit Foyer. Die anschließende Kulturhalle kann auch als 2-fach Sporthalle genutzt werden.
Die Konstruktion
Auf den massiven Sockel und die aussteifenden Treppenkerne sind die Hallen als Holzleichtbau aufgesetzt. Diese Konstruktion ermöglicht eine ökonomische Realisierung der großen Spannweiten. Dank der Vorfertigung kann der Bau rasch und exakten errichtet werden, ohne die Anwohner durch Lärm- und Schmutz zu beeinträchtigen. Die Brettschichtholzbinder als Dachtragwerk der 3-fach Sporthalle bleiben sichtbar, in der Kulturhalle werden die Fachwerkträger aus akustischen Gründen mit einer Abhangdecke verkleidet.
Quellen: dietrich.untertrifaller.com
| Bauherr | Gemeinde Plankstadt | 
| Architektur | Dietrich | Untertrifaller Architekten | 
| Kooperationspartner | Dietrich | Untertrifaller Architekten | 
| Partner | Statik: Relling, Singen, Haustechnik: IBV Defièbre, Heidelberg, Bauphysik: rw bauphysik, Schwäbisch Hall, Brandschutz: Halfkann + Kirchner, Nürnberg, Elektro: Tiede, Biblis, Akustik: Müller BBM, Planegg | 
| Leistungen JOHNNY | Termin-, Kosten- & Baumanagement | 
| Standort | Plankstadt | 
| BRI | 44.100 m³ | 
| BGF | 6.000 m² | 
| NUF | 5.400 m² | 
| Kosten | 26 Mio. € (KG 300 – 500) | 
| Bauzeit | 2022 – 2024 | 
Oberbauleiter
Team Bauleitung
Marcus A. Hoffmann, Sofie Fettig
Visualisierung
Dietrich | Untertrifaller Architekten
Sprechen Sie mich an:
                                marcus.hoffmann@johnny-architecture.de