Im Jahr 1991 baute der Heizungs- und Sanitärbetrieb “Jäger Heizung-Sanitär GmbH” im Industriegebiet von Karlsruhe-Bulach seine neue Firmenzentrale. Neben qualitativ hochwertigen Installationsarbeiten und exzellentem Kundenservice machte sich das in zweiter Generation inhabergeführte Familienunternehmen aber auch in der Bad- und Nachhaltigkeitsplanung einen immer größeren Namen. Kein Wunder, dass die bestehenden Räumlichkeiten schnell an ihre Grenzen stießen. 2015 ging es um die Ersetzung der bestehenden Büroräume, um der Werkstattfläche mehr Raum bieten zu können. Natürlich alles im Sinne der Nachhaltigkeit.
Das „Jäger Team“ wächst und so bedarf es adäquater Arbeitsstätten. Der Plan war, den Bestand von knapp 65 m² auf über 300 m² zu erweitern. Da das Grundstück bereits im Bestand aufgrund seiner spitzen Geometrie ausgereizt und ein überholter Bebauungsplan aus den 70er-Jahren noch gültig ist, standen wir vor einer nicht ganz einfachen Aufgabe.
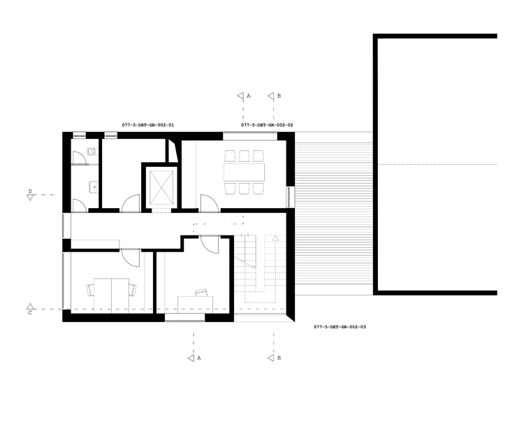
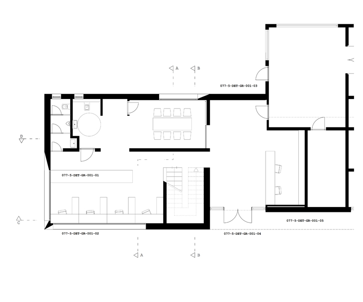
Ein kompakter, von innen heraus geplanter Würfel bietet im Neubau jede Menge (Arbeits-) Platz. Vom Sekretariat im großzügigen Eingangsbereich über einen für bis zu zehn Personen ausreichend dimensionierter Besprechungsraum im direkten Anschluss bis hin zu den offenen Arbeitsplätzen des Kundendienstes findet sich der benötigte Freiraum bereits im Erdgeschoss – kurze Kommunikationswege inklusive. Im Obergeschoss folgen dann Büroräume, die je nach Bedarf als großzügige Einzelbüros oder kompakte Doppelbüros genutzt werden können.
Zeitgemäß wird das Gebäude nicht in einer Holzelementbauweise in rohstoffbewusster Herstellung errichtet – da Nachhaltigkeit eines der zentralen Themen der Firma Jäger ist, ist der Bau im Passivhausstandard eine geforderte Selbstverständlichkeit. Die Fassade wird zudem mit einem groben Dickputz versehen, was einen attraktiven Kontrast zu den glatten, pulverbeschichteten Fensterleibungen darstellt.
Bauherr | Jäger Heizung Sanitär GmbH |
Architektur | JOHNNY architecture 2014 |
Kooperationspartner | TAFKAL GmbH |
Leistungen JOHNNY | Entwurfsplanung LPH 1 – 4 Ausführungsplanung LPH 5 Baumanagement LPH 6 – 8 |
Standort | Karlsruhe |
Bauzeit | 2015 – 2016 |
Geschäftsführer
Weitere Projektbeteiligte
Architektur
Robert Klein, Lukas Rottländer
Architekturfotografie
Nikolay Kazakov
Sprechen Sie mich an:
hallo@johnny-architecture.de