Auf der letzten freien Brache, wo unter dem Namen „Gablonzer Industrie“ traditionell Glaskurzwaren und Modeschmuck produziert wurden, bevor sie im Zuge der Globalisierung geschlossen wurden – dort entstand 2014 der neue Gewerbebau in Karlsruhe und bietet massig Platz für Kreative.
Unser Auftrag war es, die Thematik der traditionellen Schmucksteinproduktion aufzugreifen und auf dem Grundstück einen zeitgemäßen Gewerbebau zu errichten.
Anfang der 2010er Jahre musste auch der letzte Betrieb auf dem ehemaligen Gelände die Türen schließen. Und das, obwohl bereits über eine Erweiterung der Schmucksteinproduktion nachgedacht wurde. In den letzten Jahren erlebte das Areal einen Aufschwung, auch durch die zunehmende Orientierung Karlsruhes in Richtung Westen. Der neue Gewerbebau dient als zusätzlicher Impulsgeber für das Gelände und wird als Standort bei Kreativen immer beliebter.
Um die traditionelle Schmucksteinproduktion im Konzept zu integrieren, setzten wir bei der Planung der Hauptfassade auf den Einsatz von sandgestrahltem Profilglas, das eingefasst von grob geschalteten Betonwänden die Flanken des Baus bildet. Die Transluzenz des Profilglases sorgt beim doch recht massiven Baukörper für eine angenehme Leichtigkeit.
Highlight ist sicherlich das Dachgeschoss, das als Querriegel auf dem Profilglassockel liegt, von allen Seiten von einem gelochtem Trapezblech umspannt, welches an jeder Gebäudeseite von einer einzelnen, großformatigen Verglasung durchstoßen wird. Durch die übrigen Öffnungen hinter der Metallfassade ergeben sich im Tagesverlauf atemberaubende Lichtkonstellationen.
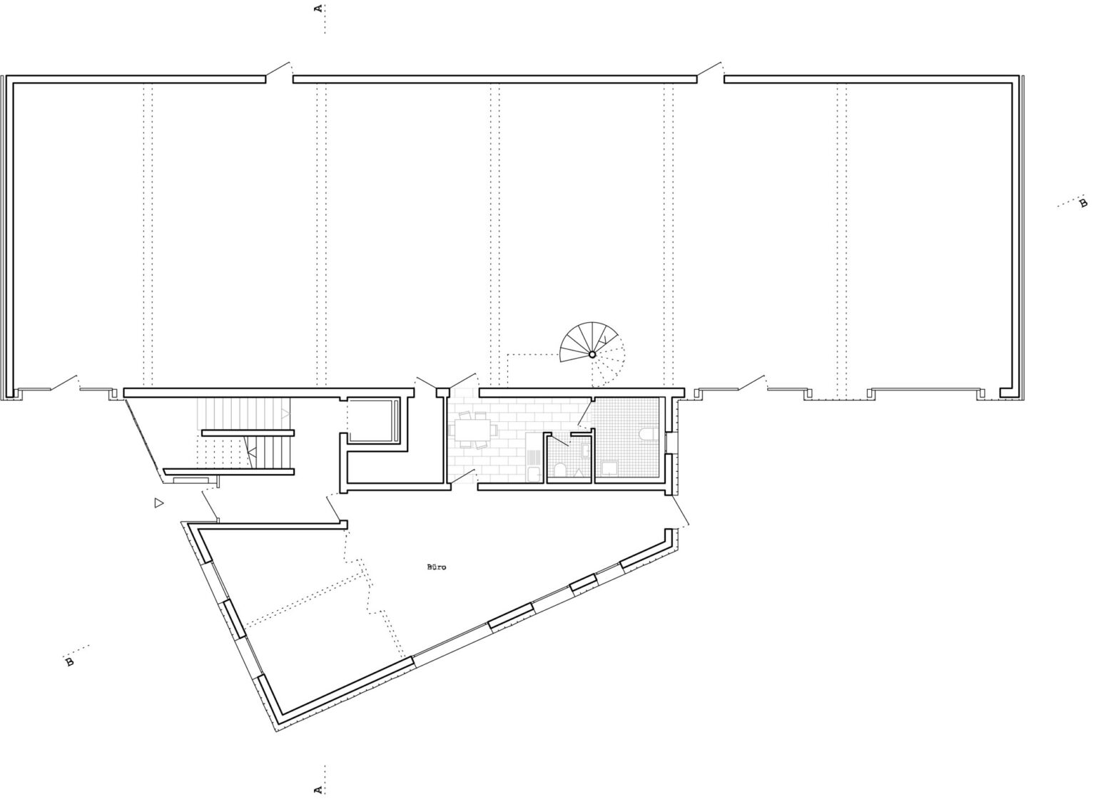
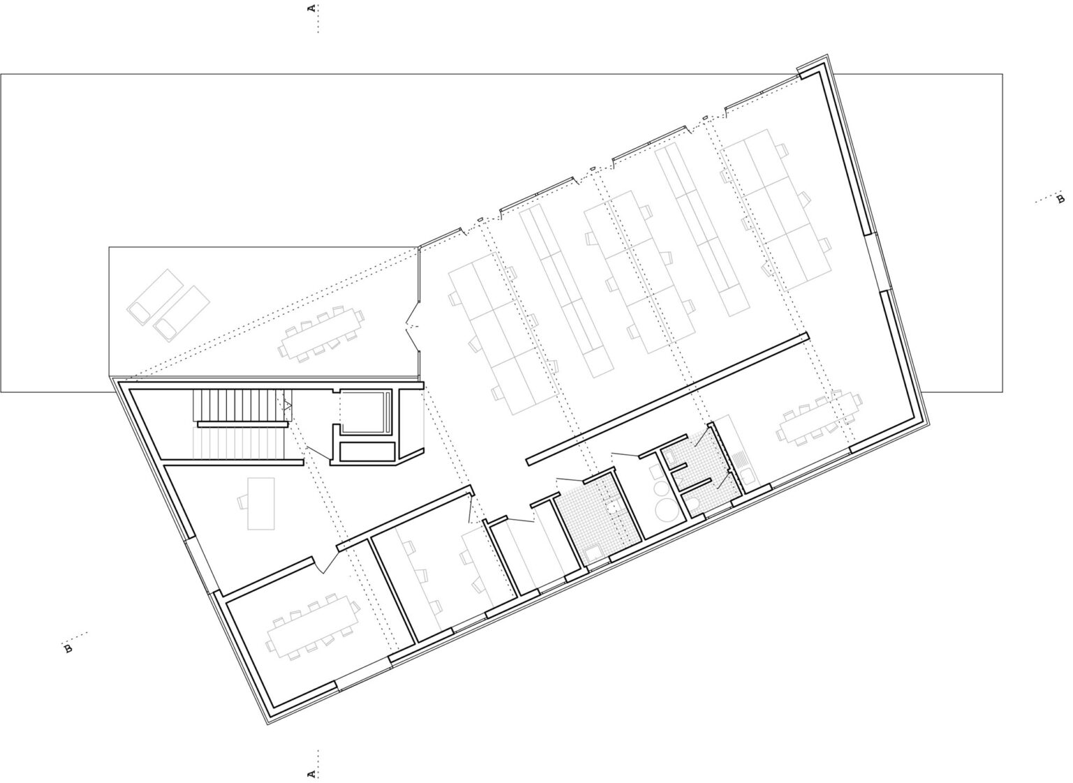
Der große Vorteil des Baus sind sicherlich die flexiblen Grundrisse. Von einer bis zu fünf Mietparteien sind hier viele verschiedene Aufteilungen möglich – von Großraum- bis Zellenbüros – und auch die zusätzliche Halle kann auf zwei unterschiedlich großen Flächen fürs Gewerbe genutzt werden.
Bauherr | privat |
Architektur | JOHNNY architecture, Axel Rupp, r36 architekten 2013 |
Kooperationspartner | TAFKAL GmbH, Entwurf in Zusammenarbeit mit Axel Rupp, r36 Architekten |
Leistungen JOHNNY | Generalplanung Plus, LPH 1 – 8 |
Standort | Karlsruhe |
NUF | 1680 m² |
Fertigstellung | 2015 - 2016 |
Geschäftsführer
Weitere Projektbeteiligte
Architektur
Entwurf in Zusammenarbeit mit Axel Rupp, r36 architekten
Architekturfotografie
Tom Hahn
Visualisierung
killius | ernst
Sprechen Sie mich an:
hallo@johnny-architecture.de