Der Discounter als Ressource: Von der Schuh-Schachtel zur Low-Tech KiTa
In Deutschland stehen etwa 16.000 "Discounterschachteln" - frei stehende Supermärkte, mit eigenem Parkplatz. Bestens an die Infrastruktur der nahen Umgebung eingebunden. Standardisiert und Optimiert bis zur zentimetergenauen Lage der Saisonartikel in der Mitte und des Schneckenverdichters an der Rückseite.
Der größte Boom der Discounter war zwischen 1995 und 2005. In manchen Jahren wurden branchenweit über 500 neue Filialen pro Jahr eröffnet. Insgesamt sind es etwa 4.000 Filialen, die in diesem Zeitraum neu gebaut worden sind. Hinzu kommen nach manchen Quellen 2 bis 3.000 An- und Umbauten um die Standardisierung der Verkaufsflächen zu erfüllen.
Heute ist dieser Bestand zwischen 20 und 30 Jahre alt. Und wir sehen es an den vielen Neubau-Projekten der Discounter in Nord und Süd - die Märkte sind an ihr kalkuliertes Lebensende gekommen. Und somit für uns die Chance der Nachnutzung.
Denn, ein Abbruch-Neubau ist die letzte Wahl des Handels. Monate des Stillstands, in dem kein Umsatz gemacht wird. Kunden-Gewohnheiten, die sich ändern, weil der Markt geschlossen ist. Also baut man lieber neu, in der direkten Nachbarschaft. Und schließt an einem Freitag die alte Filiale ab, um am Samstag die neue zu eröffnen. Der alte Bestand ist unwichtig ab diesem Tag. Vielleicht wird vermietet, vielleicht wird verkauft. In jedem Fall wird aber kaum tiefer nachgedacht, was die Substanz kann.
Die pure Masse an solcher Immobilien die jetzt ihr Lebenszyklusende finden hat uns bei JOHNNY zum Nachdenken gebracht. Wir kennen die Gebäude, nicht nur als Kunden, sondern auch als Planer. Und wir sehen ein massives Potential in diesem Bestand.
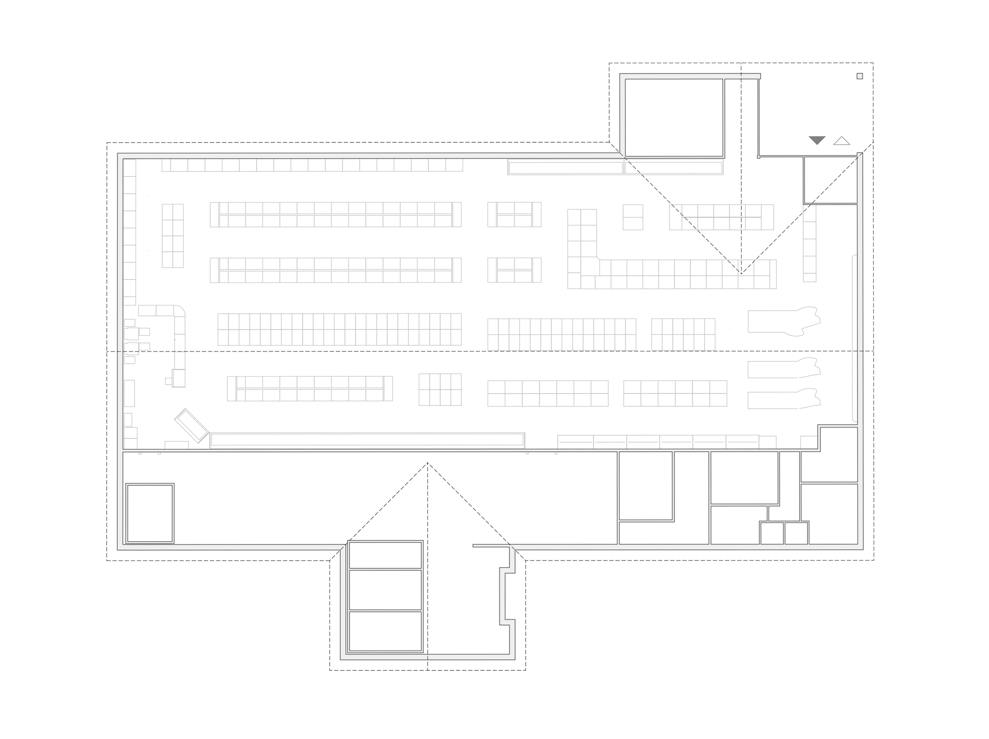
Eines unserer Konzepte ist der Umbau von Filialen in zukunfstweisende KiTas in Low-Tech-Bauweise. Die Lösung ist so simple wie die Gebäudebasis: Je nach Größe der Filiale können sechs bis acht Gruppen entlang den Fassaden untergebracht werden. Die Tiefe des Gebäudes erlaubt es, eine zentrale Spiel- und Bewegungszone einzurichten, flexibel aufteilbar. Konstruktiv erhält der Bau ein minimalistisches Upgrade, insbesondere für die Bauphysik und innere Thermik. Dies ist aber ohne große Eingriffe möglich, weil der Discounter kaum mehr als der Rohbau ist.
Architektonisch werten wir durch zusätzliche natürliche Belichtung auf, insbesondere für die Mittelzone. Diese soll auch eine eigene Klimazone sein - währen in unseren Simulationen in den Gruppenräumen mit minimalem Energieaufwand immer zwischen 22 und 26 Grad ist, darf es hier auch mal kühler oder wärmer werden, aber nie um mehr als 2°C. Technisch, ist der Unterschied jedoch immens. Und der besondere Schmankrl, nachdem wir durch Nachnutzung Ressourcen schonen und durch Low-Tech Energie nicht mal sparen müssen: Die Parkflächen der Autos werden entsiegelt und zukünftig weitläufige Spielgärten.
Das Projekt ist als ein Initiativ-Projekt bei JOHNNY entstanden. Wir haben hierzu viele Recherchen, Analysen, Planungen und Simulationen erstellt. Und wir haben Gespräche mit fast allen großen Bestandhaltern entsprechender Immobilien geführt. Sollten Sie Interesse an mehr Informationen haben oder sogar dieses oder eines unserer anderen Konzept realisieren wollen - nehmen Sie Kontakt zu uns auf!
Bauherr | Initiativprojekt |
Architektur | JOHNNY architecture 2025 |
Kooperationspartner | – |
Leistungen JOHNNY | Konzept und Entwurfsplanung |
Standort | überall |
BRI | 9.500 m³ |
BGF | 1.860 m² |
NUF | 1.680 m² |
Bauzeit | – |
Geschäftsführer
Weitere Projektbeteiligte
Team Planung
Jon Steinfeld, Carolin Thomas
Visualisierung
JOHNNY architecture
Sprechen Sie mich an:
hallo@johnny-architecture.de